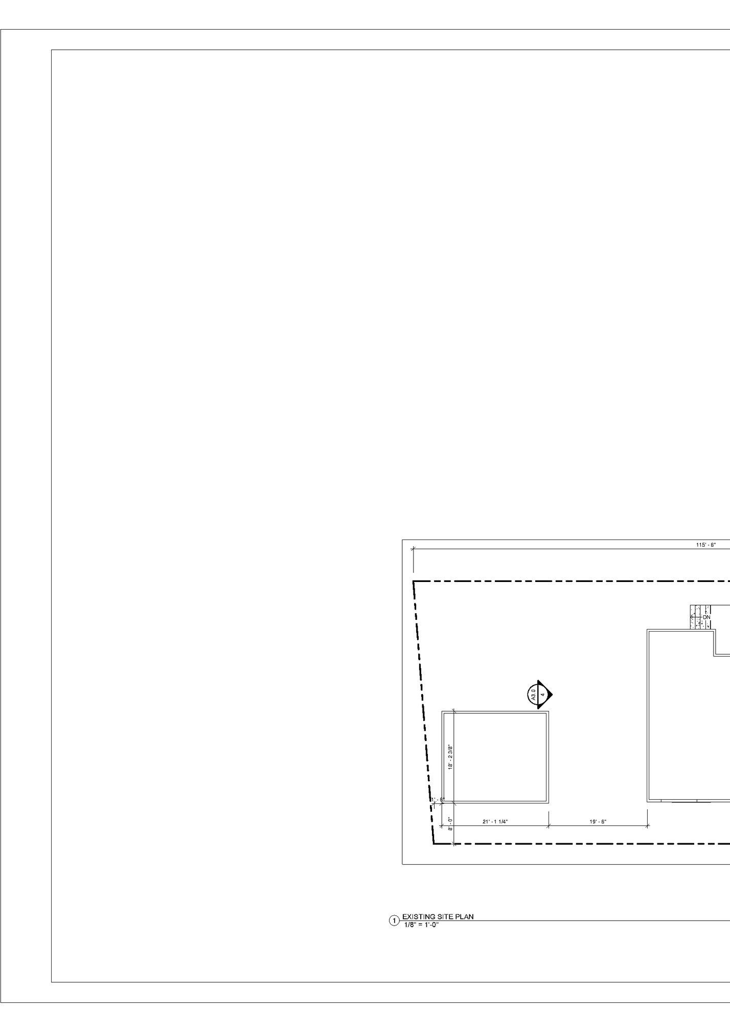
Post & Beam Design | Build 2725 Tenth Street Berkeley, CA 94710 Phone: (510) 812-2032 Fax: (510) 751-3925 OWNERS: PRIVATE CLIENT PROJECT ADDRESS: 2104 ACTON ST., BERKELEY, CA 94702 115' - 6" A3.0 3 9' - 6" 8' - 6" Date A3.0 18' - 2 3/8" 2 52' - 0" DN 21' - 1 1/4" 8' - 3 3/8" 8' - 0" 1' - 6" 19' - 6" PROJECT TITLE TBD 12' - 6 1/2" SITE PLAN 1 A3.0 1 EXISTING SITE PLAN 1/8" = 1'-0" A1.0 GRAPHIC SCALE 1/8" = 1' 0 8 16 24 32 F:\Dropbox (Personal)ds max network\Post and Beam\ACTON\MODELS\REVIT\ACTON V01.rvt Description 12/13/2024 4:02:16 PM No. DN 4 A3.0 DN
Post & Beam Design | Build 2725 Tenth Street Berkeley, CA 94710 Phone: (510) 812-2032 Fax: (510) 751-3925 OWNERS: PRIVATE CLIENT PROJECT ADDRESS: 2104 ACTON ST., BERKELEY, CA 94702 7' - 9 5/8" 12' - 8 3/8" DN DN 5' - 10" W/D WH 5' - 0" 12' - 1 1/4" Description Date 33' - 2" No. 5' - 9 5/8" 1' - 4 3/4" 6' - 2 3/8" 2' - 8 3/8" 12' - 6" Mark Operation Width Height Sill Height 001 3' - 0" 4' - 0" 3' - 0" 4' - 0" 7' - 6" 4' - 11" 3' - 6" 4' - 4" 2' - 4" 005 3' - 0" 3' - 4" DN 2' - 0" 004 Comments 2' - 8" 003 EERO 2' - 8" 002 TG 5' - 0" WINDOW SCHEDULE 3' - 4" 3' - 6" 4' - 4" 2' - 4" 007 3' - 6" 4' - 4" 2' - 4" 008 2' - 10" 3' - 10" 2' - 10" 009 3' - 6" 3' - 4" 4' - 1" 010 2' - 0" 3' - 0" 3' - 5" 011 7' - 6" 4' - 11" 2' - 0" 012 3' - 0" 4' - 0" 2' - 8" 013 3' - 0" 4' - 0" 2' - 8" 014 3' - 0" 3' - 4" 3' - 4" 015 3' - 6" 4' - 4" 2' - 4" 016 3' - 6" 4' - 4" 2' - 4" 017 2' - 10" 3' - 10" 2' - 10" 018 3' - 6" 3' - 4" 4' - 1" 019 2' - 0" 3' - 0" 3' - 5" 020 3' - 6" 4' - 4" 2' - 4" FLOOR PLAN 1 EXISTING FLOOR PLAN LEVEL 1 1/4" = 1'-0" A2.0 GRAPHIC SCALE 1/4" = 1' 0 4 8 12 16 12/13/2024 4:02:16 PM 006 PROJECT TITLE TBD 16' - 0" F:\Dropbox (Personal)ds max network\Post and Beam\ACTON\MODELS\REVIT\ACTON V01.rvt 20' - 1 1/4" 3' - 0" 2' - 9 5/8"
Post & Beam Design | Build 2725 Tenth Street Berkeley, CA 94710 Phone: (510) 812-2032 Fax: (510) 751-3925 OWNERS: PRIVATE CLIENT PROJECT ADDRESS: CLG 103' - 1 1/4" 2104 ACTON ST., BERKELEY, CA 94702 LV1 94' - 10 3/4" GRADE 92' - 4 1/4" 3 WEST ELEVATION EXISTING 1/4" = 1'-0" No. Description Date CLG 103' - 1 1/4" LV1 94' - 10 3/4" GRADE 92' - 4 1/4" 2 NORTH ELEVATION EXISTING 1/4" = 1'-0" 1 PROJECT TITLE TBD ELEVATIONS EAST ELEVATION EXISTING 1/4" = 1'-0" GRAPHIC SCALE 1/4" = 1' 0 4 8 12 16 A3.0 F:\Dropbox (Personal)ds max network\Post and Beam\ACTON\MODELS\REVIT\ACTON V01.rvt SOUTH ELEVATION EXISTING 1/4" = 1'-0" 12/13/2024 4:02:21 PM 4
Fleepit Digital © 2021