Bitácora_A00838303

EVIDENCIA 1. BITÁCORA REPRESENTACIÓN SIGNIFICATIVA




EVIDENCIA 1. BITÁCORA REPRESENTACIÓN SIGNIFICATIVA

Tecnológico de Monterrey - Campus Monterrey UF. AR1001S.102 Profesor: Perla Aurora Varela De la Cruz Alumna: Scarlett Aranza Alamilla Sosa A00838303 Monterrey N.L a 21 de Marzo de 2026

EVIDENCIA 1. BITÁCORA REPRESENTACIÓN SIGNIFICATIVA

Índice

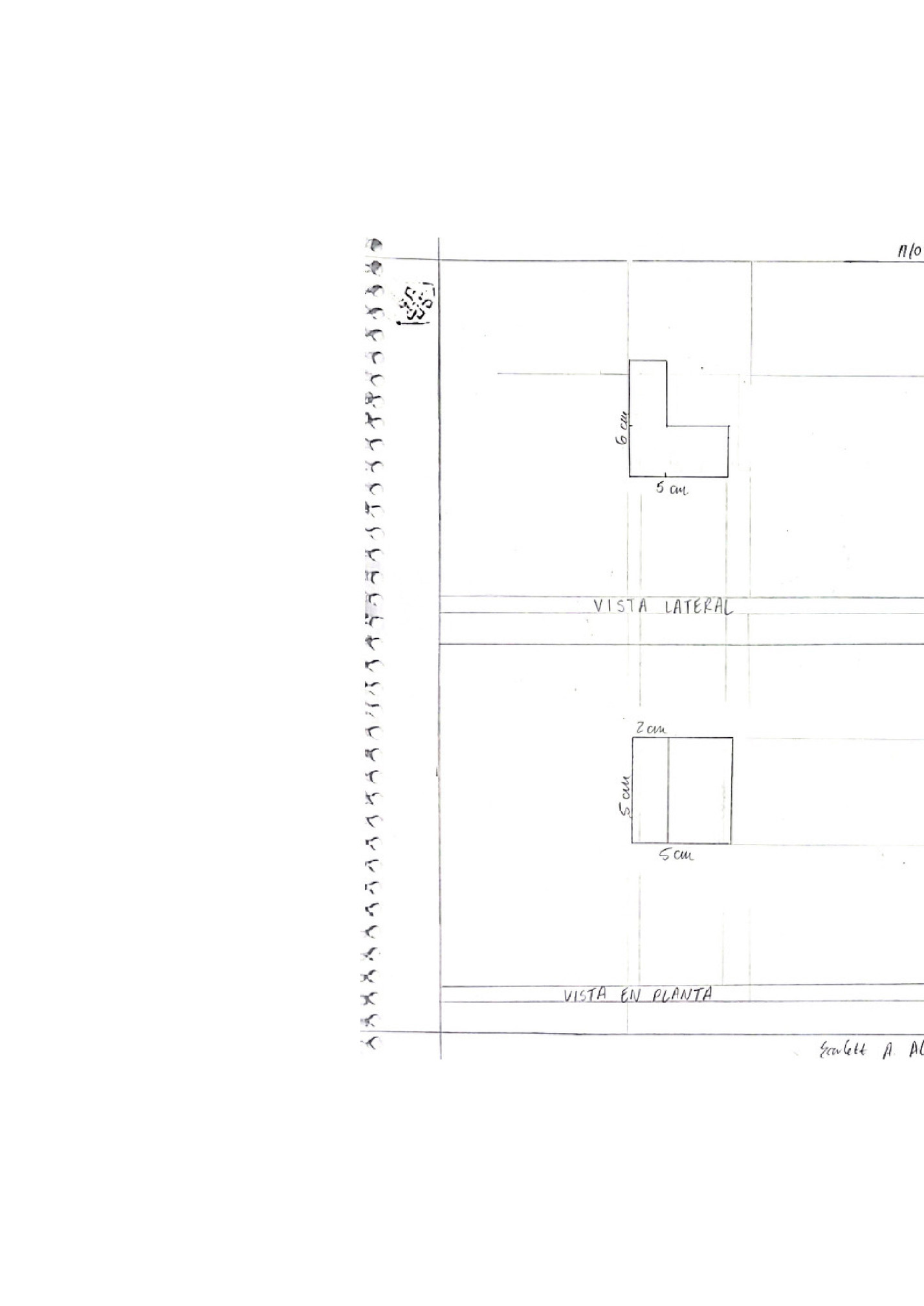
M00. Identificación ............................................................................................................. 3 M1.- Líneas y geometrías varias....................................................................................... 4 M1.1. Trazando líneas y geometrías (Parte 1) ............................................................... 4 M1.1. Trazando líneas y geometrías (Parte 2) ............................................................... 5 M1.2. Dibujando las letras. Escribiendo como arquitect@ .......................................... 6 M1.3. Proyección Ortogonal. Montea abatida e isometría ........................................... 7 M2.- Ambientación arquitectónica ................................................................................. 8 M2.1. Árboles en planta y elevación ................................................................................. 8 M2.2. Figura humana y escalas humanas ........................................................................ 9 M2.3 Entrega última actividad ........................................................................................ 10

Índice











Flipbook Gallery

Magazines Gallery

Catalogs Gallery

Reports Gallery

Flyers Gallery

Portfolios Gallery

Art Gallery

Home


Fleepit Digital © 2021