ОНЦЕПЦИЯ ФОНДОХРАНИЛИЩА В С. СТАРАЯ ЛАДОГА 187412

УЧАСТОК ПРОЕКТИРОВАНИЯ Участок проектирования находится в селе Старая Ладога, Волховского района Ленинградской области 187412 Концепция пространственного развития Фондохранилища в селе Старая Ладога, Волховского района, Ленинградской области 2

В архитектурном образе концепции фондохранилища отражено стремление авторов к символике форм и историческим аллюзиям, выраженным в пластике элементов фасада, отсылающим к древнерусскому зодчеству. В качестве конструктивной схемы здания выбран железобетонный каркас. Ограждающие конструкции главного фасада предполагается выполнить из кладки легкого бетона, в штукатурке, что необходимо, чтобы подчеркнуть массивность стен в сочетание с игрой разновеликих оконных проемов. В качестве дополнительного декора выбраны металлические решетчатые элементы, стилизованные под резные причелины и полотенца традиционного деревянного зодчества. Полукруглый элемент фасада, примыкающий к главному входу задуман, как отсылка к апсидам древнерусских каменных церквей. Элементы, навеянные зодчеством Старой Ладоги выполнены на контрасте с современными материалами, такими как витражное остекление. На первом этаже здания размещается зона приемки коллекций, из которой предметы перемещаются в зону реставрации, либо непосредственно в зону хранения. Вход посетителей предусмотрен со стороны ул. Советская. При входе расположена вестибюльная группа, включающая гардероб, стойку информации и туалеты. Из вестибюльной группы предусмотрен вход в выставочное помещение, архив, а также доступ на верхние этажи посредством лестничной клетки, либо лифта с возможностью транспортировки МГН. На втором и третьем этажах располагаются административные помещения и зона хранения коллекций. Для доставки предметов хранения из зоны приемки и реставрации предусмотрен грузовой лифт. 187412 Концепция пространственного развития Фондохранилища в селе Старая Ладога, Волховского района, Ленинградской области 3

187412 Концепция пространственного развития Фондохранилища в селе Старая Ладога, Волховского района, Ленинградской области 4

НАЯ УЛ. ГАРАЖ ЗОНА ПРИЕМКИ ЭКСПОНАТОВ ГЛАВНЫЙ ВХОД P P УЛ. СОВЕТСКАЯ 187412 Концепция пространственного развития Фондохранилища в селе Старая Ладога, Волховского района, Ленинградской области 5

15 11 14 12 13 05 06 10 16 03 04 02 17 01 08 07 09 ЭКСПЛИКАЦИЯ ПОМЕЩЕНИЙ 1 ЭТАЖА 01 02 03 04 05 06 07 08 09 ТАМБУР ВХОДНАЯ ЗОНА ИНФОРМАЦИОННАЯ СТОЙКА ГАРДЕРОБ ЛИФТОВОЙ ХОЛЛ КОРИДОР ЗАКРЫТЫЙ ФОНД ХРАНЕНИЯ АРХИВ ЛЕСТНИЧНАЯ КЛЕТКА 1 8,2 33,8 25,3 5,6 5,5 30,8 54,4 41,5 16,6 10 11 12 13 14 15 16 17 ЗОНА ПРИЕМА КОЛЛЕКЦИЙ РЕСТАВРАЦИОННАЯ МАСТЕРСКАЯ ЛИФТОВОЙ ХОЛЛ САНИТАРНЫЕ УЗЛЫ ОФИСНОЕ ПОМЕЩЕНИЕ ЛЕСТНИЧНАЯ КЛЕТКА 2 ОФИСНОЕ ПОМЕЩЕНИЕ ВЫСТАВОЧНЫЙ ЗАЛ 137,0 139,6 5,5 17,6 87,5 16,6 140,2 207,0 972,8 187412 Концепция пространственного развития Фондохранилища в селе Старая Ладога, Волховского района, Ленинградской области 6

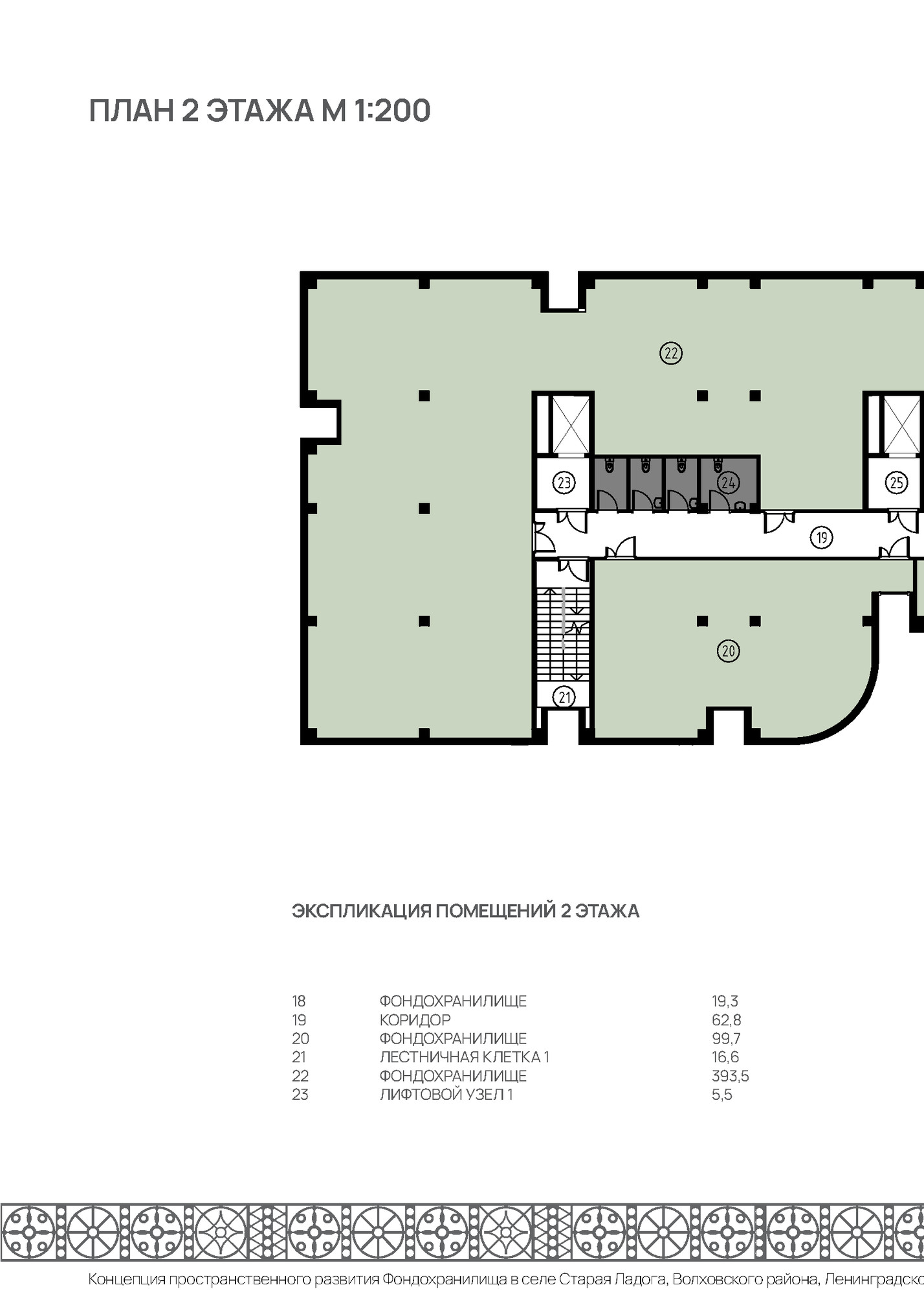
26 22 23 27 24 25 19 28 18 20 21 ЭКСПЛИКАЦИЯ ПОМЕЩЕНИЙ 2 ЭТАЖА 18 19 20 21 22 23 ФОНДОХРАНИЛИЩЕ КОРИДОР ФОНДОХРАНИЛИЩЕ ЛЕСТНИЧНАЯ КЛЕТКА 1 ФОНДОХРАНИЛИЩЕ ЛИФТОВОЙ УЗЕЛ 1 19,3 62,8 99,7 16,6 393,5 5,5 24 25 26 27 28 САНИТАРНЫЕ УЗЛЫ ЛИФТОВОЙ УЗЕЛ 2 ЛЕСТНИЧНАЯ КЛЕТКА 2 ОФИСНОЕ ПОМЕЩЕНИЕ ФОНДОХРАНИЛИЩЕ 17,6 5,5 16,6 146,9 196,8 980,8 187412 Концепция пространственного развития Фондохранилища в селе Старая Ладога, Волховского района, Ленинградской области 7

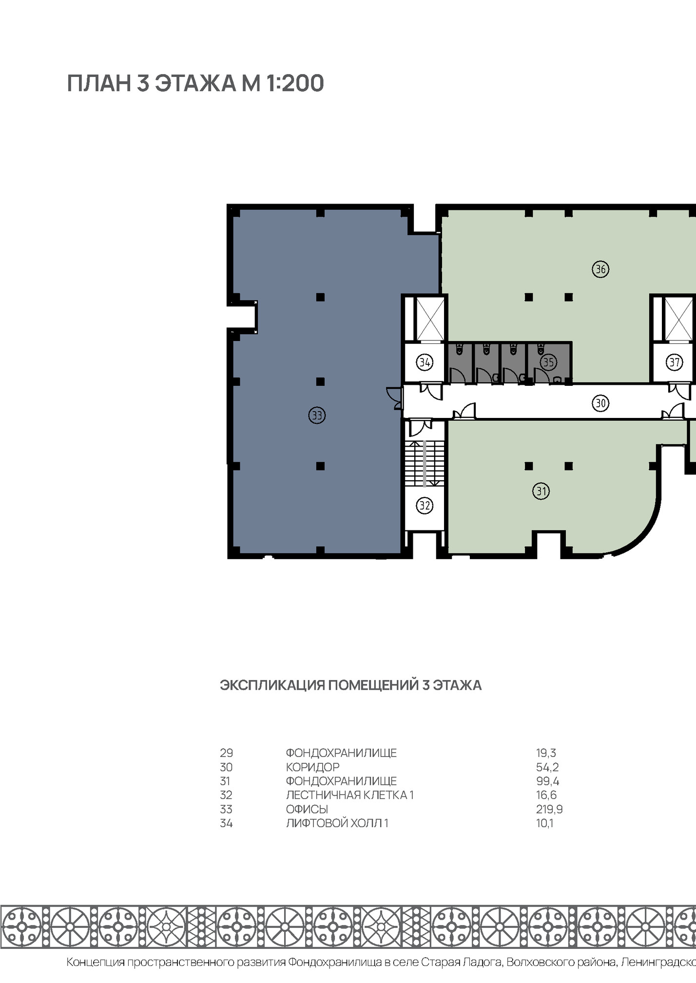
36 34 35 38 39 37 30 33 29 31 32 ЭКСПЛИКАЦИЯ ПОМЕЩЕНИЙ 3 ЭТАЖА 29 30 31 32 33 34 ФОНДОХРАНИЛИЩЕ КОРИДОР ФОНДОХРАНИЛИЩЕ ЛЕСТНИЧНАЯ КЛЕТКА 1 ОФИСЫ ЛИФТОВОЙ ХОЛЛ 1 19,3 54,2 99,4 16,6 219,9 10,1 35 36 37 38 39 САНИТАРНЫЕ УЗЛЫ ФОНДОХРАНИЛИЩЕ ЛИФТОВОЙ ХОЛЛ 2 ЛЕСТНИЧНАЯ КЛЕТКА 2 ОФИСНОЕ ПОМЕЩЕНИЕ 17,6 174,7 10,1 16,7 357,4 995,9 187412 Концепция пространственного развития Фондохранилища в селе Старая Ладога, Волховского района, Ленинградской области 8

СЕВЕРНЫЙ ФАСАД М 1:200 ЮЖНЫЙ ФАСАД М 1:200 187412 Концепция пространственного развития Фондохранилища в селе Старая Ладога, Волховского района, Ленинградской области 9

Fleepit Digital © 2021