Architecture Projects






CONSTRUCTION NOTE:

NOTE: * THIS DRAWING IS PROPERTY OF MESSERS SENSE OF SPACE ARCHITECTURE STUDIO IS NOT TO BE USED OR REPRODUCED WITHOUT THEIR WRITTEN PERMISSION. * THE CONTRACTOR SHALL VERIFY ALL DIMENSIONS ON THE JOB & REPORT ANY DISCREPANCIES TO SENSE OF SPACE ARCHITECTURE STUDIO. * THE STRUCTURAL DESIGNER SHALL BE RESPONSIBLE FOR THE STABILITY OF STRUCTURE, DESIGN AND SUPERVISION. * THE DRAWING SHALL NOT BE SCALED ONLY WRITTEN DIMENSIONS SHALL BE FOLLOWED. * IN CASE OF ANY DISCREPANCY PLEASE REFER TO SENSE OF SPACE ARCHITECTURE STUDIO. COPY RIGHT: BATHROOM 4'3"x5'0" This drawing is copyright of the Sense of Space Architecture Studio issued on the terms that it will not be produced or copied in whole or part nor will any information be furnished from it without the permission of the Architect. WC 3'9"x5'0" PARENT's BEDROOM 10'0"x12'0" LIVING ROOM 10'6"x12'9" Rev Date DESCRIPTION Up UTILITY 4'6"x9'3" KITCHEN 10'0"x10'7" POOJA 3'3"x4'0" DINING 9'0"x9'6" Dn FOR INFORMATION ONLY Up Project Rachannavar House @Mutaga, Karnataka. Title WORKING DRAWINGS (Ground Floor Plan) Sense of Space Architecture Studio. Address : Opp. Priyanka Hotel, 1st Cross Hindwadi, Belgaum, Karnataka, India. 590011 e-mail : ar.shivabhosale@gmail.com S e n s e o f S p a c e Mob : +91 9844542493. Architect Drawing Number Shiva Bhosale AD_2021_BR_ 001 CA/2017/84579 R O A D Date 01 GROUND FLOOR PLAN Scale - 1: N.A. 21/02/2022 Drawn By S.J. North Scale 1 : N.A.

CONSTRUCTION NOTE:

CONSTRUCTION NOTE:

NOTE: * THIS DRAWING IS PROPERTY OF MESSERS SENSE OF SPACE ARCHITECTURE STUDIO IS NOT TO BE USED OR REPRODUCED WITHOUT THEIR WRITTEN PERMISSION. * THE CONTRACTOR SHALL VERIFY ALL DIMENSIONS ON THE JOB & REPORT ANY DISCREPANCIES TO SENSE OF SPACE ARCHITECTURE STUDIO. * THE STRUCTURAL DESIGNER SHALL BE RESPONSIBLE FOR THE STABILITY OF STRUCTURE, DESIGN AND SUPERVISION. * THE DRAWING SHALL NOT BE SCALED ONLY WRITTEN DIMENSIONS SHALL BE FOLLOWED. * IN CASE OF ANY DISCREPANCY PLEASE REFER TO SENSE OF SPACE ARCHITECTURE STUDIO. COPY RIGHT: This drawing is copyright of the Sense of Space Architecture Studio issued on the terms that it will not be produced or copied in whole or part nor will any information be furnished from it without the permission of the Architect. TOILET 10'0"x4'0" MASTER BEDROOM-1 10'0"x13'3" OPEN TERRACE Rev Date DESCRIPTION STUDY 8'6"x6'2" FOR INFORMATION ONLY MASTER BALCONY 10'0"x5'8" Project Rachannavar House @Mutaga, Karnataka. C12 Title WORKING DRAWINGS (First Floor Plan) Sense of Space Architecture Studio. Address : Opp. Priyanka Hotel, 1st Cross Hindwadi, Belgaum, Karnataka, India. 590011 e-mail : ar.shivabhosale@gmail.com S e n s e o f S p a c e Mob : +91 9844542493. Architect Drawing Number Shiva Bhosale AD_2021_BR_ 002 CA/2017/84579 Date 01 FIRST FLOOR PLAN Scale - 1: N.A. 21/02/2022 Drawn By S.J. North Scale 1 : N.A.

CONSTRUCTION NOTE:

CONSTRUCTION NOTE:

NOTE: * THIS DRAWING IS PROPERTY OF MESSERS SENSE OF SPACE ARCHITECTURE STUDIO IS NOT TO BE USED OR REPRODUCED WITHOUT THEIR WRITTEN PERMISSION. * THE CONTRACTOR SHALL VERIFY ALL DIMENSIONS ON THE JOB & REPORT ANY DISCREPANCIES TO SENSE OF SPACE ARCHITECTURE STUDIO. * THE STRUCTURAL DESIGNER SHALL BE RESPONSIBLE FOR THE STABILITY OF STRUCTURE, DESIGN AND SUPERVISION. * THE DRAWING SHALL NOT BE SCALED ONLY WRITTEN DIMENSIONS SHALL BE FOLLOWED. * IN CASE OF ANY DISCREPANCY PLEASE REFER TO SENSE OF SPACE ARCHITECTURE STUDIO. COPY RIGHT: This drawing is copyright of the Sense of Space Architecture Studio issued on the terms that it will not be produced or copied in whole or part nor will any information be furnished from it without the permission of the Architect. C05 Rev Date DESCRIPTION OPEN TERRACE Dn FOR INFORMATION ONLY OPEN TERRACE C09 Project Rachannavar House @Mutaga, Karnataka. C10 C11 Title WORKING DRAWINGS (Terrace Floor Plan) Sense of Space Architecture Studio. Address : Opp. Priyanka Hotel, 1st Cross Hindwadi, Belgaum, Karnataka, India. 590011 e-mail : ar.shivabhosale@gmail.com S e n s e o f S p a c e Mob : +91 9844542493. Architect Drawing Number Shiva Bhosale AD_2021_BR_ 003 CA/2017/84579 Date 01 TERRACE FLOOR PLAN Scale - 1: N.A. 21/02/2022 Drawn By S.J. North Scale 1 : N.A.

CONSTRUCTION NOTE:

CONSTRUCTION NOTE:

NOTE: * THIS DRAWING IS PROPERTY OF MESSERS SENSE OF SPACE ARCHITECTURE STUDIO IS NOT TO BE USED OR REPRODUCED WITHOUT THEIR WRITTEN PERMISSION. * THE CONTRACTOR SHALL VERIFY ALL DIMENSIONS ON THE JOB & REPORT ANY DISCREPANCIES TO SENSE OF SPACE ARCHITECTURE STUDIO. * THE STRUCTURAL DESIGNER SHALL BE RESPONSIBLE FOR THE STABILITY OF STRUCTURE, DESIGN AND SUPERVISION. * THE DRAWING SHALL NOT BE SCALED ONLY WRITTEN DIMENSIONS SHALL BE FOLLOWED. * IN CASE OF ANY DISCREPANCY PLEASE REFER TO SENSE OF SPACE ARCHITECTURE STUDIO. COPY RIGHT: This drawing is copyright of the Sense of Space Architecture Studio issued on the terms that it will not be produced or copied in whole or part nor will any information be furnished from it without the permission of the Architect. KW DRAINAGE LEGEND: SL NO. D2 DESCRIPTION SYMBOL SH SHOWER WITH DIVERTER 04 2'-6" WB WASH BASIN 03 2" WC WATER CLOSET WALL MOUNTED EXPOSED CISTERN 02 3'-3" 01 FT FLOOR TRAP KS KITCHEN SINK 05 A A B B C C D D GEY GEYSER 06 07 03 ELEVATION A 04ELEVATION B Scale - 1: N.A. 05ELEVATION C Scale - 1: N.A. Scale - 1: N.A. GT GULLY TRAP 09 06 ELEVATION D Scale - 1: N.A. IC 08 VC INSPECTION CHAMBER VALVE CHAMBER DRAINAGE LEGEND: SL NO. DESCRIPTION SYMBOL 01 100Ø SOIL PIPE 02 50Ø/75Ø WASTER PIPE 03 FCO 04 FLOOR CLEAN OUT RWP 05 SRWO RAIN WATER PIPE SIDE RAIN WATER OUTLET DRAINAGE LEGEND: SL NO. DESCRIPTION SYMBOL 01 SH SOLAR WATER SUPPLY PIPE 04 eq DW DRINKING WATER SUPPLY PIPE 03 eq WC DOMESTIC WATER SUPPLY PIPE 02 FT HOT WATER SUPPLY PIPE KS BALL VALVE sol B sol sol sol Date DESCRIPTION HOB A 1 4'-42" HOB sol Rev D sol A 05 sol C D sol C sol sol B GOOD FOR CONSTRUCTION 8' sink as per selection sink as per selection sink as per selection Project Rachannavar House @Mutaga, Karnataka. eq sink as per selection Title eq PLUMBING LAYOUT-KITCHEN (Ground Floor ) Sense of Space Architecture Studio. Address : Opp. Priyanka Hotel, 1st Cross Hindwadi, Belgaum, Karnataka, India. 590011 e-mail : ar.shivabhosale@gmail.com S e n s e o f S p a c e Mob : +91 9844542493. KW KW 01 Scale - 1:N.A Drawing Number Shiva Bhosale TO GUTTER PLUMBING LAYOUT-GROUND FLOOR KITCHEN Architect AD_2021_BR_ 004 CA/2017/84579 Date 02 FITTING LAYOUT GROUND FLOOR KITCHEN Scale - 1:N.A 25/02/2022 Drawn By S.J. North Scale 1 : N.A.

CONSTRUCTION NOTE:

CONSTRUCTION NOTE:

NOTE: * THIS DRAWING IS PROPERTY OF MESSERS SENSE OF SPACE ARCHITECTURE STUDIO IS NOT TO BE USED OR REPRODUCED WITHOUT THEIR WRITTEN PERMISSION. * THE CONTRACTOR SHALL VERIFY ALL DIMENSIONS ON THE JOB & REPORT ANY DISCREPANCIES TO SENSE OF SPACE ARCHITECTURE STUDIO. * THE STRUCTURAL DESIGNER SHALL BE RESPONSIBLE FOR THE STABILITY OF STRUCTURE, DESIGN AND SUPERVISION. * THE DRAWING SHALL NOT BE SCALED ONLY WRITTEN DIMENSIONS SHALL BE FOLLOWED. * IN CASE OF ANY DISCREPANCY PLEASE REFER TO SENSE OF SPACE ARCHITECTURE STUDIO. V COPY RIGHT: This drawing is copyright of the Sense of Space Architecture Studio issued on the terms that it will not be produced or copied in whole or part nor will any information be furnished from it without the permission of the Architect. DRAINAGE LEGEND: SL NO. DESCRIPTION SYMBOL 02 SH SHOWER WITH DIVERTER FT FLOOR TRAP KS KITCHEN SINK 3'-6" 4' D1 WB WASH BASIN 04 D1 WC WATER CLOSET WALL MOUNTED EXPOSED CISTERN 03 1 6'-64" 01 3' 05 GEY GEYSER 2'-6" 06 1'-5" A A B B C IC 08 GT GULLY TRAP 09 1'-63" 8 07 VC INSPECTION CHAMBER VALVE CHAMBER DRAINAGE LEGEND: C SL NO. DESCRIPTION SYMBOL 01 03 ELEVATION A 04ELEVATION B Scale - 1: N.A. 02 05 ELEVATION C Scale - 1: N.A. 100Ø SOIL PIPE 50Ø/75Ø WASTER PIPE 03 Scale - 1: N.A. FCO 04 FLOOR CLEAN OUT RWP 05 SRWO RAIN WATER PIPE SIDE RAIN WATER OUTLET DRAINAGE LEGEND: TO IC.2 SL NO. DESCRIPTION SYMBOL 01 SH SOLAR WATER SUPPLY PIPE 04 V DW DRINKING WATER SUPPLY PIPE 03 V WC DOMESTIC WATER SUPPLY PIPE 02 FT HOT WATER SUPPLY PIPE KS BALL VALVE sol sol sol 1'-2" eq sol sol sol Date DESCRIPTION FCO eq eq 5' 1' 6" sol eq sol FCO Rev sol 05 FCO 1 42" sol FCO 6" A Dry Area Wet Area Wet Area Dry Area GOOD FOR CONSTRUCTION C D Project D1 Rachannavar House @Mutaga, Karnataka. B Title PLUMBING LAYOUT-BATHROOM (Ground Floor ) D1 Sense of Space washbasin as per selection Architecture Studio. Address : Opp. Priyanka Hotel, 1st Cross Hindwadi, Belgaum, Karnataka, India. 590011 e-mail : ar.shivabhosale@gmail.com S e n s e o f S p a c e Mob : +91 9844542493. D D Architect Drawing Number Shiva Bhosale AD_2021_BR_ 005 CA/2017/84579 Date 01 PLUMBING LAYOUT-GROUND FLOOR BATHROOM Scale - 1:N.A 02 FITTING LAYOUT-GROUND FLOOR BATHROOM Scale - 1:N.A 06 ELEVATION D Scale - 1:N.A 25/02/2022 Drawn By S.J. North Scale 1 : N.A.

CONSTRUCTION NOTE:

CONSTRUCTION NOTE:

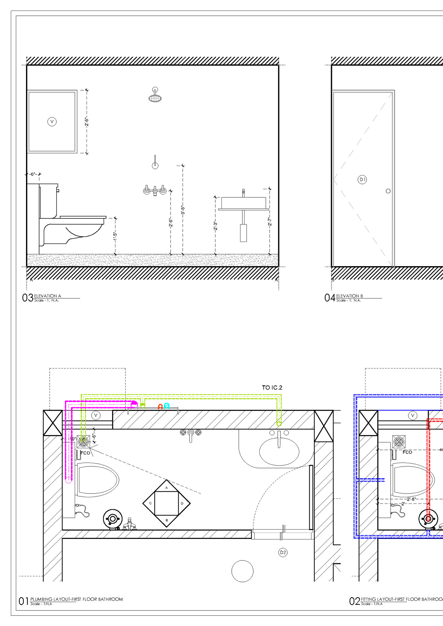
NOTE: 2'-6" * THIS DRAWING IS PROPERTY OF MESSERS SENSE OF SPACE ARCHITECTURE STUDIO IS NOT TO BE USED OR REPRODUCED WITHOUT THEIR WRITTEN PERMISSION. * THE CONTRACTOR SHALL VERIFY ALL DIMENSIONS ON THE JOB & REPORT ANY DISCREPANCIES TO SENSE OF SPACE ARCHITECTURE STUDIO. * THE STRUCTURAL DESIGNER SHALL BE RESPONSIBLE FOR THE STABILITY OF STRUCTURE, DESIGN AND SUPERVISION. * THE DRAWING SHALL NOT BE SCALED ONLY WRITTEN DIMENSIONS SHALL BE FOLLOWED. * IN CASE OF ANY DISCREPANCY PLEASE REFER TO SENSE OF SPACE ARCHITECTURE STUDIO. V COPY RIGHT: This drawing is copyright of the Sense of Space Architecture Studio issued on the terms that it will not be produced or copied in whole or part nor will any information be furnished from it without the permission of the Architect. DRAINAGE LEGEND: SL NO. 6" DESCRIPTION SYMBOL 01 FLOOR TRAP KS KITCHEN SINK 2'-7" 3' SHOWER WITH DIVERTER FT 05 2'-8" GEY GEYSER 06 1'-5" 1'-5" 2'-3" SH 04 4'-6" 3'-6" WB WASH BASIN 03 2'-6" WC WATER CLOSET WALL MOUNTED EXPOSED CISTERN 02 D1 IC 08 GT GULLY TRAP 09 1' 07 VC INSPECTION CHAMBER VALVE CHAMBER DRAINAGE LEGEND: A A B B C SL NO. C DESCRIPTION SYMBOL 01 03 ELEVATION A 04 ELEVATION B Scale - 1: N.A. 05 ELEVATION C Scale - 1: N.A. 100Ø SOIL PIPE 02 Scale - 1: N.A. 50Ø/75Ø WASTER PIPE 03 FCO 04 FLOOR CLEAN OUT RWP 05 SRWO RAIN WATER PIPE SIDE RAIN WATER OUTLET DRAINAGE LEGEND: SL NO. DESCRIPTION SYMBOL 01 WC DOMESTIC WATER SUPPLY PIPE 02 DW DRINKING WATER SUPPLY PIPE 03 SH SOLAR WATER SUPPLY PIPE 04 FT HOT WATER SUPPLY PIPE KS BALL VALVE sol sol sol TO IC.2 sol V sol sol sol Rev sol sol 05 sol Date DESCRIPTION 6" V FCO FCO eq eq eq 10" GOOD FOR CONSTRUCTION A washbasin as per selection C Project D Rachannavar House @Mutaga, Karnataka. A B Title 2'-3" B PLUMBING LAYOUT-BATHROOM (First Floor) 2'-7" 2' D eq 2'-8" C Sense of Space Architecture Studio. Address : Opp. Priyanka Hotel, 1st Cross Hindwadi, Belgaum, Karnataka, India. 590011 e-mail : ar.shivabhosale@gmail.com S e n s e o f S p a c e Mob : +91 9844542493. D2 D D Architect Drawing Number Shiva Bhosale AD_2021_BR_ 006 CA/2017/84579 Date 01 PLUMBING LAYOUT-FIRST FLOOR BATHROOM Scale - 1:N.A 02 FITTING LAYOUT-FIRST FLOOR BATHROOM Scale - 1:N.A 06 ELEVATION D Scale - 1: N.A. 25/02/2022 Drawn By S.J. North Scale 1 : N.A.

CONSTRUCTION NOTE:

CONSTRUCTION NOTE:

NOTE: * THIS DRAWING IS PROPERTY OF MESSERS SENSE OF SPACE ARCHITECTURE STUDIO IS NOT TO BE USED OR REPRODUCED WITHOUT THEIR WRITTEN PERMISSION. * THE CONTRACTOR SHALL VERIFY ALL DIMENSIONS ON THE JOB & REPORT ANY DISCREPANCIES TO SENSE OF SPACE ARCHITECTURE STUDIO. * THE STRUCTURAL DESIGNER SHALL BE RESPONSIBLE FOR THE STABILITY OF STRUCTURE, DESIGN AND SUPERVISION. * THE DRAWING SHALL NOT BE SCALED ONLY WRITTEN DIMENSIONS SHALL BE FOLLOWED. * IN CASE OF ANY DISCREPANCY PLEASE REFER TO SENSE OF SPACE ARCHITECTURE STUDIO. COPY RIGHT: 1'-2" This drawing is copyright of the Sense of Space Architecture Studio issued on the terms that it will not be produced or copied in whole or part nor will any information be furnished from it without the permission of the Architect. SYMBOLS 2'-6" eq WC 3'9"x5'0" CL-b SB1/2 CL-b SB1/2 SCHEDULE OF ELECTRICAL FIXTURES. eq CL-a SB1 CL-b SB1 TV eq 1 6'-102" 1 6'-102" WL-a SB1 Bath 4'3"x5'0" 2' CL-b SB1/2 SB2 WM-a SB4 eq eq 6'-9'' 3'-3" WL-a @ 7' ht. SB1 2' SB2 SB4 eq PARENT's BEDROOM 10'0"x12'0" eq eq eq SB3 WM-a SB1 FAN SB2 CL-b SB1/2 WM-b SB4 CL-a SB1 FP SB2 eq WL SB2 FAN SB1 CL-b SB1 WL-b SB1 SB1 SB1 eq SB2 2' eq 1'-6" eq 1'-6" eq FAN SB5 SL D/N AW LC LT WM FW TL Date DESCRIPTION eq CL SB1 WL SB1 SB2 1'-6" WM-b SB5 1'-6" AW CL-a SB1 DINING 9'0"x9'6" CL-a SB1 WM-a SB1 SB eq eq CL-a SB1 eq CL-b SB4 eq eq eq eq CL-b SB4 2'-6" Rev Pe.L eq 2'-6" eq SB5 3'-4'' eq Dn KITCHEN 10'0"x10'7" 2'-6" WM-a SB1 eq POOJA 3'3"x4'0" eq eq FAN SB1 SB4 eq CL-b SB1 eq SB1 SB1 eq SB2 LOBBY eq eq eq BP CL-a SB1 eq UTILITY 4'6"x9'3'' eq CL-a SB1 CL-a SB1 eq CL-b SB4 eq eq SB1 WL Spot light DVR/NVR Aquaguard LED cover Table light Wall mount Fan wall Track light Bell SB(Lobby) Bu Wall lamp DB & Meter Board DB Buzzer Pedant light LIVING ROOM 10'6"x12'9" CF Distribution board SB3 CL-b SB4 TP CP BP B 5AMP 15AMP BL CL PL EX FL SB LED AC PP LC C.TV Ceiling fan CL-b SB1 CL-a SB1 CL-a SB1/3 1'-6" BL SB1 2'-6" eq CL-a SB1/3 SB3 CL-a SB1/3 2'-6" eq eq WL-a SB2 2'-6" 2' LAN eq 1 5'-12" eq DESCRIPTION One way switch Two way switch Telephone point (direct line) Cable point Bell push button Bell buzzer 5 amp power point 15 amp heating point Bracket Light Ceiling Light Picture light Exhaust fan Foot lamp switchboard LED lights Air Condition Plug Point LAN CONNECTION CCTV BL SB Up GOOD FOR CONSTRUCTION Project Rachannavar House @Mutaga, Karnataka. Title SB5 eq WL SB1 eq ELECTRICAL FITTING LAYOUT (Ground Floor Plan) Sense of Space Architecture Studio. Address : Opp. Priyanka Hotel, 1st Cross Hindwadi, Belgaum, Karnataka, India. 590011 e-mail : ar.shivabhosale@gmail.com S e n s e o f S p a c e Mob : +91 9844542493. Architect Drawing Number Shiva Bhosale AD_2021_BR_ 007 CA/2017/84579 R O A D Date 01 GROUND FLOOR PLAN Scale - 1: N.A. 03/03/2022 Drawn By S.J. North Scale 1 : N.A.

CONSTRUCTION NOTE:



Flipbook Gallery

Magazines Gallery

Catalogs Gallery

Reports Gallery

Flyers Gallery

Portfolios Gallery

Art Gallery

Home


Fleepit Digital © 2021