Rubio,Heidi Portfolio

PORTFOLIO




PORTFOLIO

UNDERGRADUATE INTERIOR DESIGN HEIDI RUBIO EIDI 2023-PRESENT

PORTFOLIO

Heidi E. Rubio

I am a third year Interior design student attending at UNT. EDUCATION May 20, 1999 DFW Metroplex, Texas 469 558 9851 In Progress hersinteriordesign @gmail.com SOFRWARE SKILLS ANOLOGUE SKILLS EXPERIENCE OFFICE DESIGN - 3 STORY Transformed an open study area into a learning and development classroom April 2024 & December 2024 UNDERGRADUATE Univeristy of North Texas Present CORE DESIGN & DRAFTING Revit, SketchUp, Enscape, Adobe InDesign, Photoshop, Microsoft Office PERSPECTIVE DRAWING Creating hand-drawn perspective views to show depth and spatial relationships within a design. ASSOCIATES Tarrant County College 2020 PRESENTAION & DOCUMENTATION Microsoft Excel – Finish schedules, FF&E tracking HOTEL LOBBY Redesigned a hotel lobby in Mexico, incorporating locally sourced natural materials August 2024 HIGHSCHOOL Fossil Ridge High School 2017 SPACE PLANNING WITH GRAPH PAPER Manual Floor Plans and Furniture Arrangements Google Workspace – Collaboration, file sharing, documentation SKETCHING AND HAND DRAWING Quick concept sketches and detailed renderings FOOD TRUCK Designed the interior and exterior of a coffee/food truck October 2024 LANGUAGES ENGLISH Native SPANISH Native

Heidi E. Rubio

05

Food Truck Table of Contents 13 Office Building 23 37 Assisted Living Home Hand Renderings

05

Imported Drawing into Chat GPT to help create idea

05 FOOD TRUCK DESIGN BEAN N’ BITES Beans n’ Bites is designed as a sleek black coffee trailer paired with a warm, wood-toned interior that serves breakfast and lunch. A refined monochromatic palette defines the equipment, while earthy brown accents add depth and warmth to the space. A feature accent wall, visible through expansive windows, creates a strong visual connection between the interior and exterior, fostering an inviting, cohesive, and welcoming atmosphere for guests.

Imported Drawing into Chat GPT to help create idea

DETAILS

LOCATION BUBBLE DIAGRAM OPTION #1 RESEARCH DIAGRAM SEATTLE, WASHINGTON BUBBLE DIAGRAM OPTION #2 SITE VIEW MENU LOCATION: SEATTLE, WASHINGTON SURROUNDINGS: MAJOR HOSPITAL, MEDICAL BUILDINGS DETAILED RESEARCH 07 BUBBLE DIAGRAM OPTION #3

DETAILS

EQUIPMENT LEGEND

HAND DRAWN PLANS LIGHTING LEGEND FLAT PLANEL FLUSH MOUNT LIGHT ELECTRICAL OUTLETS AREA SQ FT: 160 FLOOR MATERIAL: SOLID DIAMAND-PLATE MAT SS HEIGHT OF CEILING: 8FT. CEILING MATERIAL: WOOD VENEER CEILING PANELS LIGHT SWITCHES FLOOD LIGHTS FLOOD LIGHTS F.A.K. GENERATOR ELECTRICAL BOX WITH BREAKERS FLOOR PLAN KEY: F.A.K - FIRST AID KIT P.O.S - POINT OF SALES WINDOW FOOD TRUCK FLOOR PL AN SCALE: 1/2’-0” = 1’-0” 09 FIRE EXTINGUISHER 1 REFLECTIVE CEILING PL AN PLAN SCALE: 1/2’-0” = 1’-0”

EQUIPMENT LEGEND

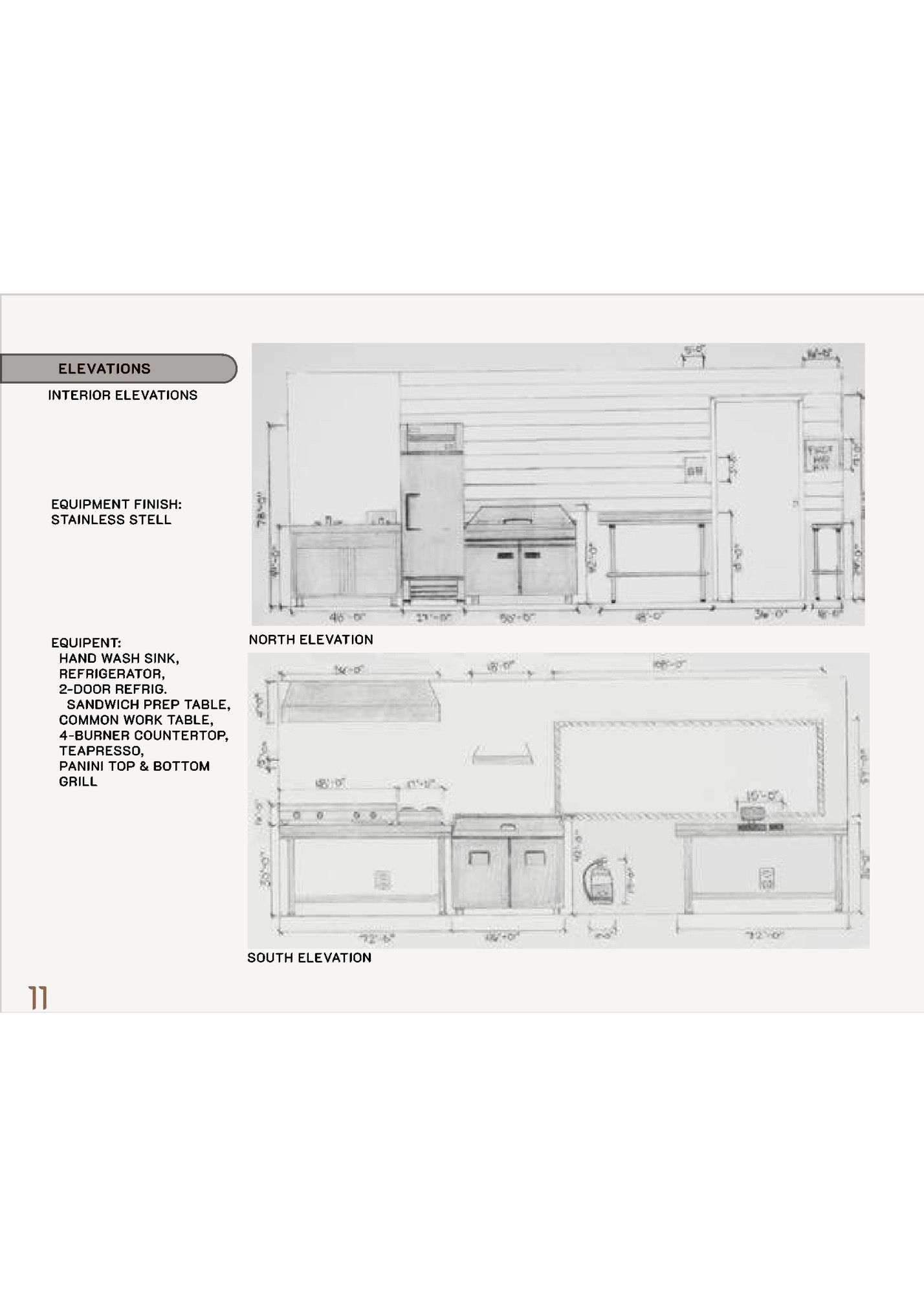
EXTERIOR ELEVATIONS

ELEVATIONS 240”-0’ 62”-0’ 100”-0’ 6”-0’ 24”-0’ 96”-0’ EQUIPMENT FINISH: STAINLESS STELL 33”-0’ 5 4”-0’ 6”-0’ INTERIOR ELEVATIONS NORTH ELEVATION RIMS AREA 15” NORTH ELEVATION - ORDERING VIEW 36”-0’ 240”-0’ 36”-0’ 24”-0’ 8 4”-0’ 96”-0’ EQUIPENT: HAND WASH SINK, REFRIGERATOR, 2-DOOR REFRIG. SANDWICH PREP TABLE, COMMON WORK TABLE, 4-BURNER COUNTERTOP, TEAPRESSO, PANINI TOP & BOTTOM GRILL SOUTH ELEVATION SOUTH ELEVATION - ENTRY 11 RIMS AREA 15” 19” STEP

EXTERIOR ELEVATIONS

PERSPECTIVES

EXTERIOR SKETCH PUBLIC VIEW FLOOR PLAN EXTERIOR COLOR RENDERING 13 VIEW KEY: YELLOW: ADA VIEW GREEN: STANDING VIEW GREY: STAFF VIEW INTERIOR SKETCH

PERSPECTIVES

Rendering fromREVIT

15 OFFICE BUILDING Isso Designed to support productivity, collaboration, and professional comfort through a modern, cohesive environment that balances openness with privacy. The concept emphasizes clarity of circulation, material consistency, and spatial hierarchy, creating a workplace that feels efficient, welcoming, and visually refined. A neutral palette of painted concrete, oak wood flooring, quartz surfaces, and black aluminum detailing establishes a contemporary aesthetic while maintaining warmth and approachability. Strategic use of wood finishes softens the modern architectural shell and adds visual comfort to shared spaces such as the reception area, teamwork zones, and break room.

Rendering fromREVIT



Flipbook Gallery

Magazines Gallery

Catalogs Gallery

Reports Gallery

Flyers Gallery

Portfolios Gallery

Art Gallery

Home


Fleepit Digital © 2021